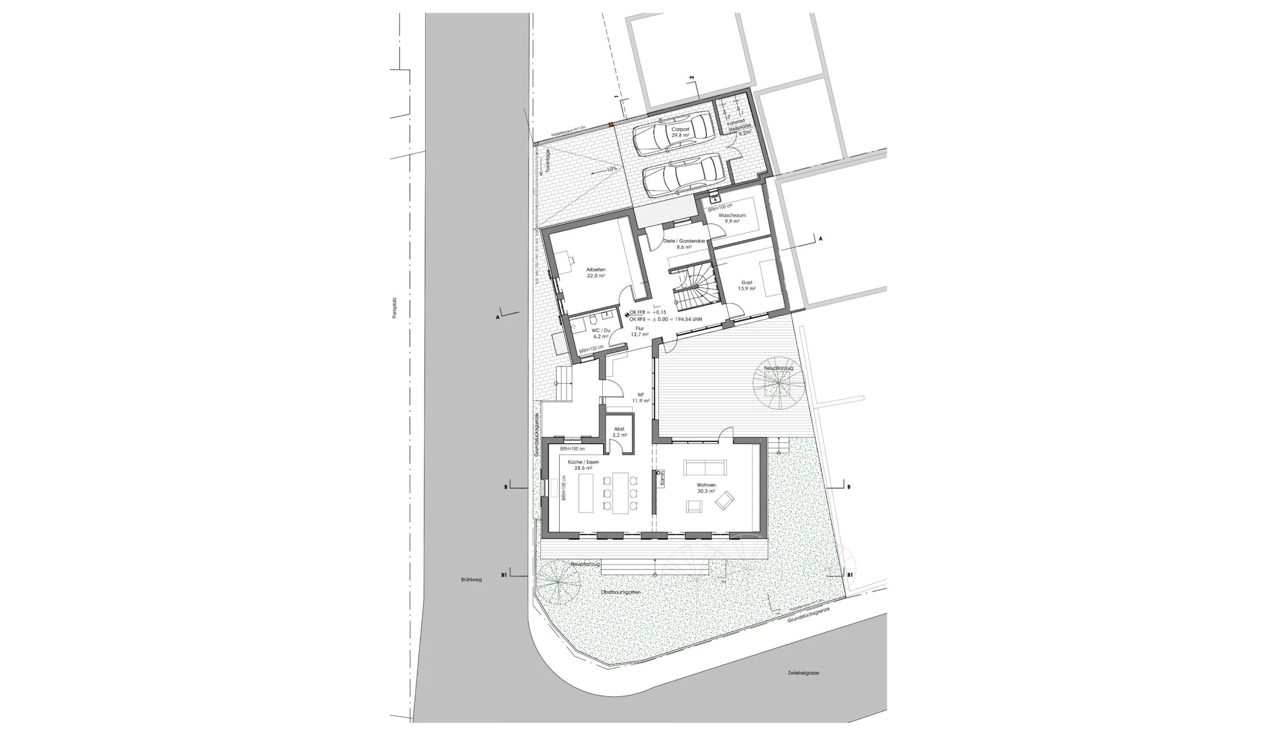
Verbindendes Element


Wohnhaus M


Abbruch altes Lager, erhaltung der Umriss (Straßenbezug) + Erweiterung

Fassade Straße laut Ortsbausatzung, Öffungen für viel Licht

Erhaltung Obstbaumgarten an der Straße + schaffung eines Innenhofes für Privatsphäre

Innenhof mit moderne Gestaltung, da es von der Straße nicht sichtbar ist

  • Lage: D-79291 Merdingen bei Freiburg
    Bauherr: privat
    Mitarbeiter: Ana Mortu-Karcheter, Mathias Haller
    Planungszeit: 2021
    Lph: 1-4


 
Zurück
Zurück

Filetstückchen auf Handtuchgröße

Weiter
Weiter

Wohnhaus N