Logistikzentrum für einen Textilgroßhändler


maximale Flächennutzung für viel Stoff

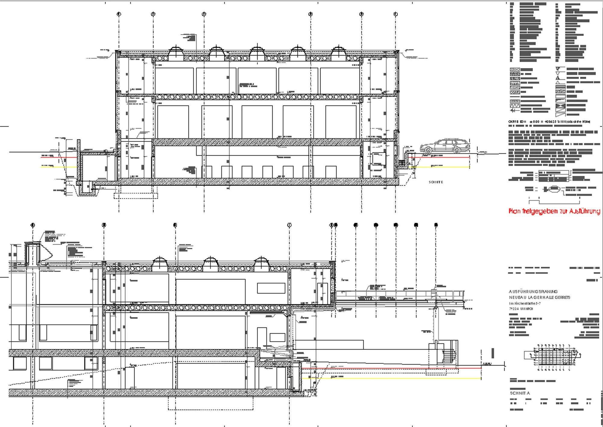
Lagerhalle Gerriets Deutschland

Der Neubau einer Lager- und Kommissionierhalle für ein weltweit tätiges Unternehmen erforderte ein ausgeklügeltes logistisches System für 1.800 unterschiedliche Artikel. Das Lager ist charakterisiert durch seine Vielseitigkeit an Lagermöglichkeiten für sehr kleine und sehr große Artikel.

  • Lage: D-79224 Umkirch, Im Kirchenhürstle 5-7
    Bauherr: Gerriets GmbH, D-79224 Umkirch, Im Kirchenhürstle 5-7
    Mitarbeiter: Dieter Beerbohm, Mathias Haller
    Lph: 1-7, Bauoberleitung

  • Da die Firma aus dem Theaterbau hervorgegangen ist, wurden die aus den Funktionen herausgebildeten Baukörper durch ein fast vollständig umlaufendes Glasband als sich hebender und wieder senkender Vorhang eingerahmt.

  • Die Neuausrichtung der innerbetrieblichen Logistikprozesse welche von dem Logistikplaner DoBüLog entwickelt wurden, sollten eine Ausweitung der Lagerkapazitäten hervorbringen. Gleichzeitig wurde ein neues Lagerverwaltungssystem benötigt. Hierbei galt es, auf dem vorhandenen Grundstück, eine maximale Flächennutzung zu erzielen. Die Ware wird somit zum eigentlichen Hauptakteur der Bühne "Lagerhalle Gerriets".

    Die Funktion des Stoffzuschnittes erforderte eine stützen- und unterzugfreie Spannweite der Stahlbetondecken von über 20 m, welche mit dem neuartigen und kostengünstigen System von Betonhohlkörperdecken erreicht wurde. Das Gebäude wurde vollständig unterkellert, um die zugehörige Schlosserei für die Scherenzüge der Theatervorhänge unterzubringen. Kommissionierflächen, Stofflager und Konfektionierflächen sind im Erd– und Obergeschoss angeordnet.

    Die Geschossebenen einschließlich der Hofebene werden über eine ca. 7m lange und 2,8 m breite Scherenhubbühne mit 6 to Tragkraft erschlossen. Das Lager verfügt über ca. 2.000 Stellplätze für verschiedenste Lagerhilfsmittel. In diesem Zuge wurde ebenfalls ein belegloses Kommissioniersystem eingeführt, das im Zusammenspiel mit dem geplanten Webshop eine hohe Systemverfügbarkeit garantiert.


 
 
Zurück
Zurück

Ein neues Zuhause für die Gemeinde

Weiter
Weiter

Firmenzentrale mit kommunikativem Workflow: Bürogebäude “Blaues Haus”