Familienhaus im Obergeschoss


Wohnhaus H

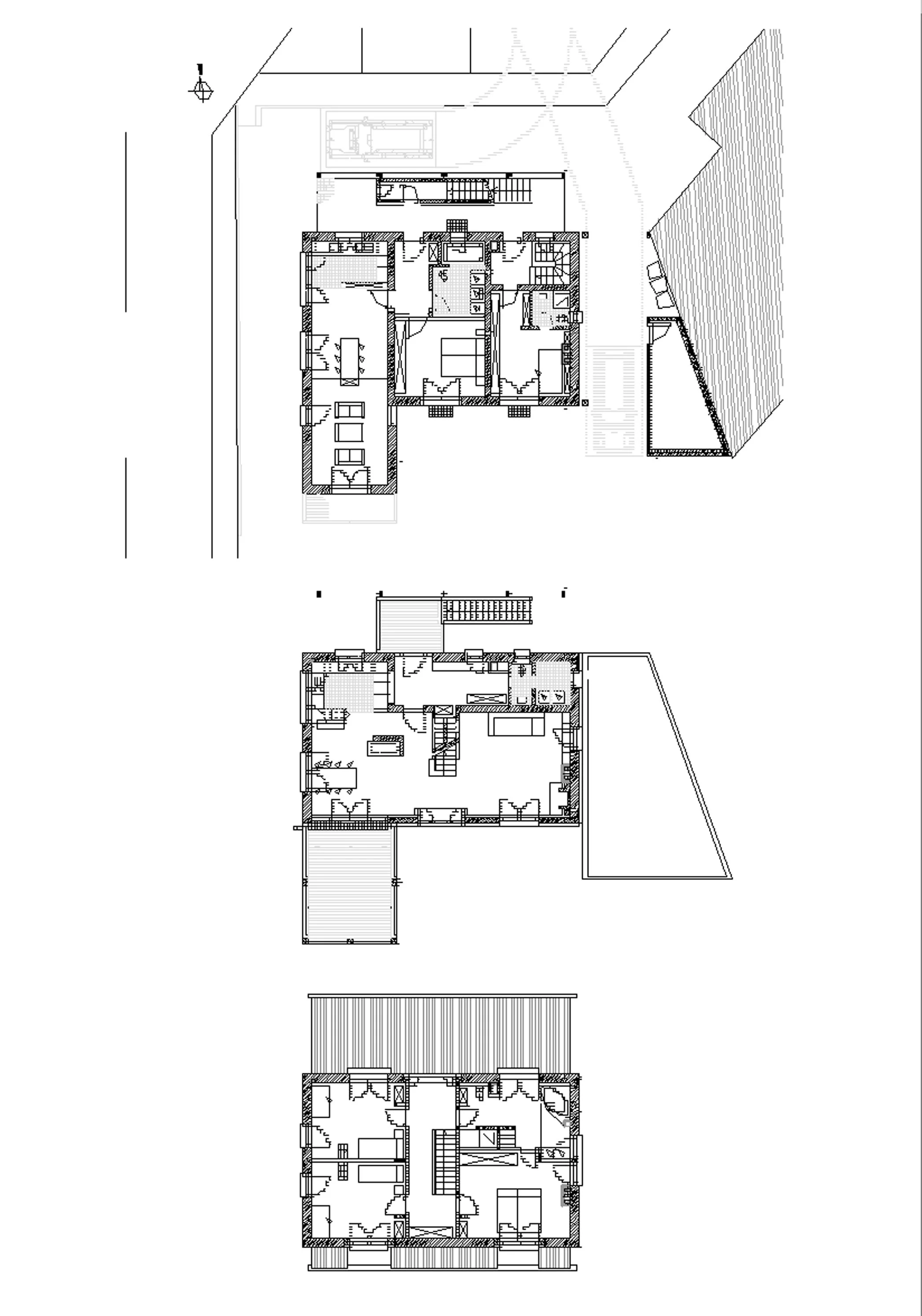
Eine behindertengerechte Einliegerwohnung verlegt ein Einfamilienhaus ins Obergeschoss

  • Lage: Freiburg
    Bauherr: privat
    Mitarbeiter: Mathias Haller
    In Zusammenarbeit mit FM

  • Auf einem relativ ebenem Gelände wurde eine komplizierte Bauaufgabe verwirklicht. Der Bauherr wollte eine behindertengerechte Einliegerwohnung errichten. Zusätzlich wurde eine Unterkellerung durch die baurechtlichen Vorgaben ausgeschlossen. Der Eingang in das eigentliche Einfamilienhaus konnte somit nur im OG platziert werden. Über die außenliegende Treppe gelangt man zu einem Treppenpodest als Freifläche und betritt von dort den nördliche n Eingangsbereich als Auftakt zu dem eigentlichen Einfamilienhaus.

    Ein innenliegendes Fenster von der Küche zum Eingang, eine große Freiterrasse als Ersatz des fehlenden Grünbereiches, eine als Sitzbank ausgebautes Fenster und eine Ofenanlage führen zu Durch- und Aussichten innerhalb des Raumgefüges und lassen den Wohnbereich großzügig und hell wirken.

    Der direkt an die Eingangshalle im OG anschließende Wohnbereich wird in seinem offenen Grundriss durch eine L-förmige Wand und durch die Lage der innenliegende Wohntreppe zoniert und in die Bereiche von Küche und Essen sowie Wohnen eingeteilt.

    Die einläufige Treppe, welche den Wohnbereich räumlich definiert, führt zur Diele im OG und gibt an dieser Stelle die gesamte Raumhöhe des Gebäudes wieder, wodurch sie trotz ihrer geringen Breite räumlich sehr großzügig wirkt.

    Die Diele erschließt sämtliche Zimmer und das Bad.


Zurück
Zurück

Ungenutzer Speicher wird zu neuer Wohnung